洛社镇正明安置区(一期)C地块工程规划设计方案(变更)审查批前公示
根据城乡规划管理有关规定,现对洛社镇正明安置区(一期)C地块工程规划设计方案变更进行批前公示。
一、项目概况
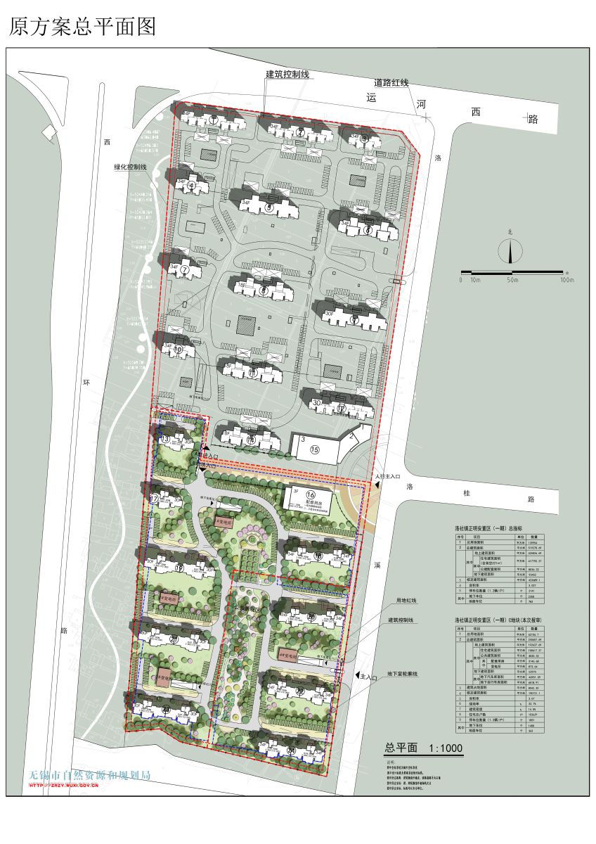
该项目位于惠山区,建设单位为无锡惠龙建设投资有限公司,用地位于洛社镇园中路南侧、洛溪路西侧,用地性质为居住用地,项目总可建设用地面积约13.97万平方米。该项目已于2018年4月办理规划设计方案审查,目前13#楼、16#-19#楼、21#楼、23#楼已建成。本次建设单位拟根据安置需求及相关技术规范要求,对原方案中20#、22#、24#楼进行调整,主要内容为优化建筑单体设计,将34层住宅调整为27层住宅并优化了户型设计,在24#楼西侧增加了1栋文体活动用房,同时优化了交通组织及建筑单体立面造型,变更后总建筑面积约50.61万平方米,C地块建筑面积约23.24万平方米,符合规划审批要求。
二、公示地点和时间
公示地点:
1、项目所在地现场,小区出入口
2、无锡市自然资源和规划局网站(http://zrzy.wuxi.gov.cn/)
3、无锡市自然资源和规划局惠山分局公示栏
公示时间:2023年6月1日---2023年6月10日
三、联系方式和意见反馈
联系地点:无锡市自然资源和规划局惠山分局(文惠路16号)
邮政编码: 214174
联系电话:0510-83598093
电子邮箱:GHJHSFJ@163.COM
公示期间,如有意见或建议,请反馈给我局(请注明本人身份、联系电话或地址)。
附:原规划设计方案总平面图、效果图
本次报批变更方案总平面图、效果图(批前公示)
无锡市自然资源和规划局惠山分局
2023年5月31日




