工博园中小学新建工程项目规划设计方案批前公示
2023-07-20 11:13:01 无锡市自然资源和规划局
根据城乡规划管理有关规定,现对工博园中小学新建工程项目规划设计方案进行批前公示。
一、项目概况
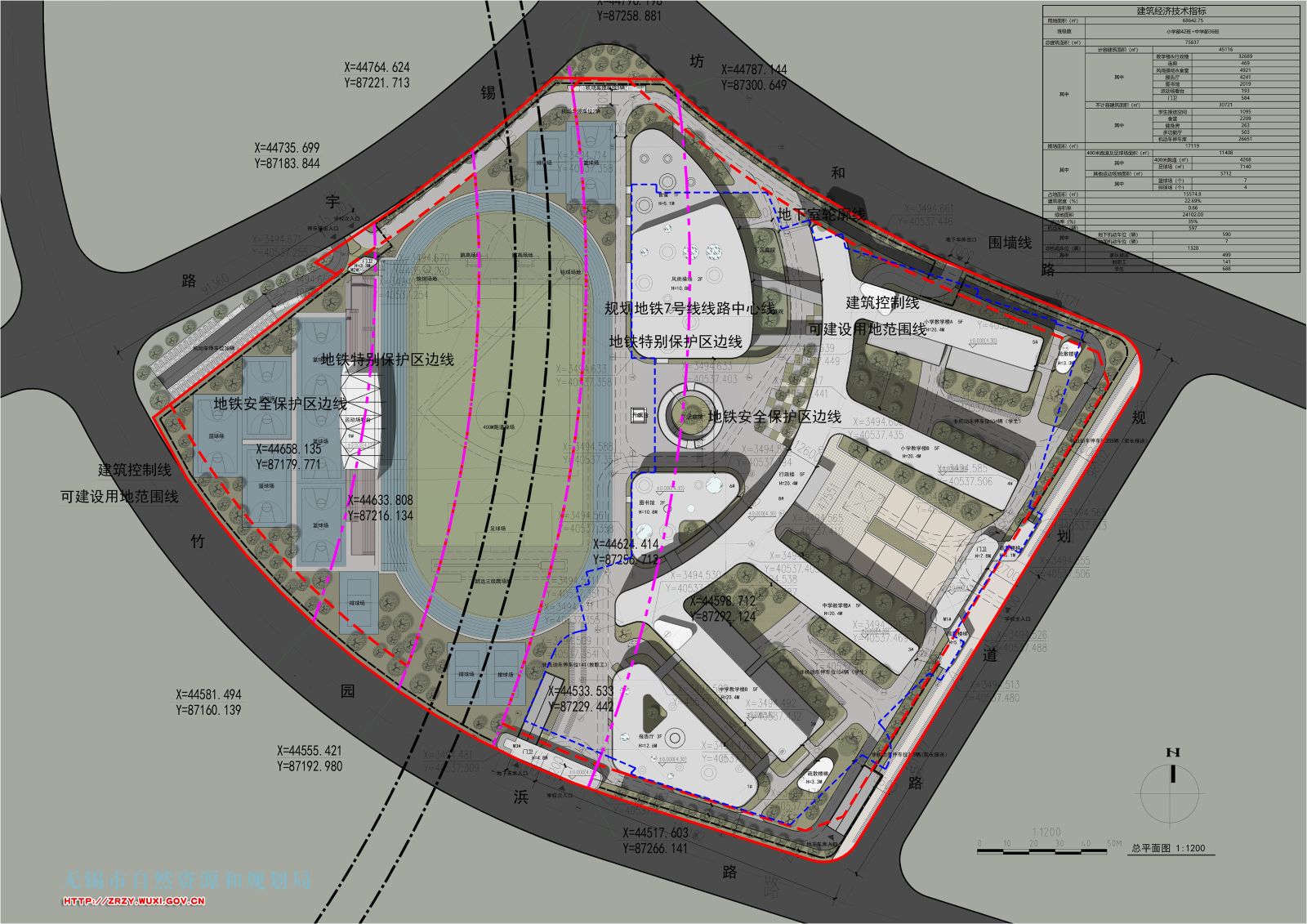
项目位于无锡市新吴区江溪街道坊和路与锡宇路交叉口东南侧,项目集中建设实施单位为无锡市新吴区重点建设项目管理中心。可建设用地面积约68643平方米,规划用地性质为教育用地。总建筑面积约7.6万平方米,容积率、建筑密度等相关指标符合规划要求。
二、公示地点和时间
公示地点:
1、项目所在地现场;江溪街道公示栏;无锡市自然资源和规划局新吴分局公示栏;
2、无锡市自然资源和规划局网站(http://zrzy.wuxi.gov.cn/);
公示时间:2023年7月20日——2023年7月29日。
三、联系方式和意见反馈
联系地点:无锡市自然资源和规划局新吴分局(新吴区龙山路9号)
邮政编码:214000 联系电话:81021509
电子邮箱:wxxqgh@163.com
公示期间,如有意见或建议,请反馈给我局(请注明本人身份、联系电话或地址)。
附:项目规划设计方案主要图纸(批前公示)
(注:方案中停车位、绿化景观、市政设施的内容不在本次公示范围中,以上内容以市政绿化审批的方案为准,各项技术经济指标以方案审查意见书为准。)
无锡市自然资源和规划局新吴分局
2023年7月20日


