惠丰苑三期安置房(保障性)新建工程规划设计方案审查批前公示
2023-11-10 09:29:43 无锡市自然资源和规划局
应建设单位申请,根据城乡规划管理有关规定,现对无锡惠山工业转型集聚区建设发展有限公司惠丰苑三期安置房(保障性)新建工程规划设计方案进行批前公示。
一、项目概况
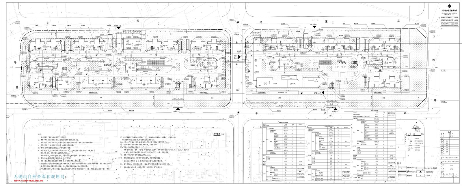
该项目位于惠山区前洲街道平湖路北侧、从商路东西两侧,建设单位为无锡惠山工业转型集聚区建设发展有限公司,规划用地性质为居住用地,可建设用地面积约7.77万平方米,其中A块面积约3.54万平方米,B块面积4.04万平方米、地下可开发利用空间面积约0.19万平方米。本次报审方案总建筑面积约32.4万平方米,主要设计内容为12栋高层住宅、2栋配套用房、1栋商业用房及地下室等。
二、公示地点和时间
公示地点:
1、项目所在地现场沿路围墙
2、无锡市自然资源和规划局网站(http://zrzy.wuxi.gov.cn/)
3、无锡市自然资源和规划局惠山分局公示栏
公示时间:2023年11月10日---2023年11月19日
三、联系方式和意见反馈
联系地点:无锡市自然资源和规划局惠山分局(文惠路16号)
邮政编码: 214174
联系电话:0510-83598309
电子邮箱:GHJHSFJ@163.COM
公示期间,如有意见或建议,请反馈给我局(请注明本人身份、联系电话或地址)。
附:方案总平面图,鸟瞰图等设计图件(批前公示)
无锡市自然资源和规划局惠山分局
2023年10月9日



