锡东又一睦邻中心规划公示!
2022-07-12 10:35:15 无锡市自然资源和规划局
根据城乡规划管理有关规定,现对无锡锡东新城商务区(翠屏山旅游度假区)XDG-2021-55号地块开发项目规划设计方案进行批前公示。
一、项目概况
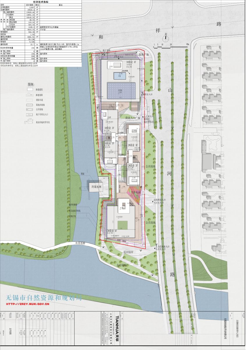
该项目位于锡东新城商务区(翠屏山旅游度假区)山河路西、和祥路南,建设单位为无锡润安建设开发有限公司,总可建设用地面积约 11807平方米,用地性质为商业用地,总建筑面积约2.95万平方米,其中地上建筑面积1.99万平方米,地下建筑面积约0.96万平方米,容积率1.6,建筑密度59.1%,绿地率5.0%,各项指标符合规划设计条件要求。
二、公示地点和时间
1、项目所在地现场
2、无锡市自然资源和规划局锡山分局一楼规划公示栏(东亭南路2号)
3、锡东新城商务区管委会一楼大厅规划公示栏(安镇东兴路198号)
4、无锡市自然资源和规划局网站(http:/zrzy.wuxi.gov.cn)
公示时间:2022年6月30日---2022年7月9日
三、联系方式和意见反馈
联系地点:无锡市自然资源和规划局锡山分局(东亭南路2号)
联系电话:88535689
电子邮箱:xishanguihuaju@163.com
公示期间,如有意见或建议,请反馈给我局(请注明本人身份、联系电话或地址)。
附:锡东新城商务区(翠屏山旅游度假区)XDG-2021-55号地块开发项目规划设计方案公示图(批前公示)
无锡市自然资源和规划局锡山分局
2022年6月29日


