经开新项目拟建10栋住宅,楼面价18000元/㎡+自带泳池
2023-01-29 10:55:32 无锡市自然资源和规划局
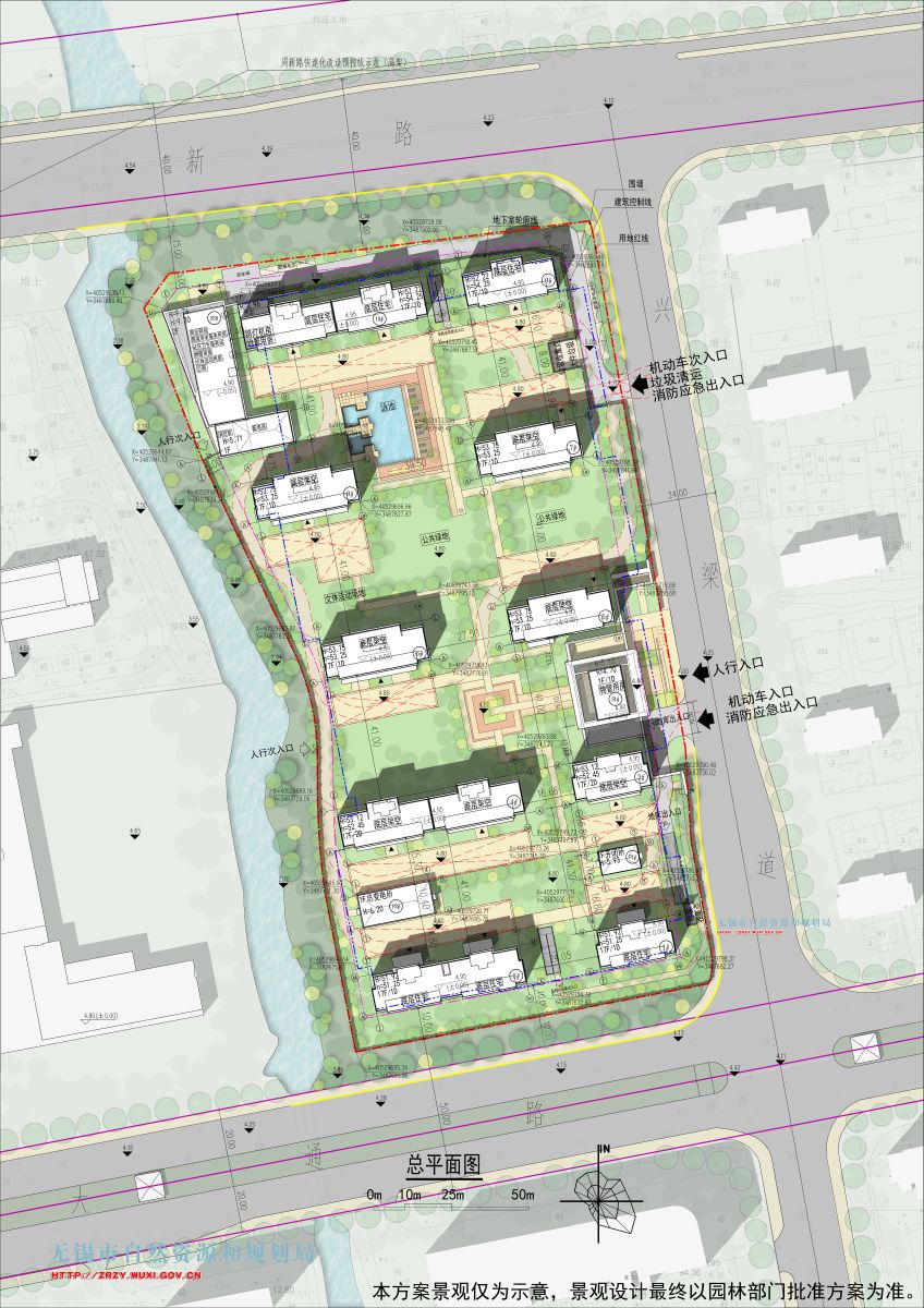
近日,XDG-2022-55号地块开发建设项目规划设计方案批前公示。


XDG-2022-55号地块开发建设项目位于无锡经开区周新路与兴梁道交叉口西南侧,建设单位为无锡城梁置业有限公司。
项目可建设用地面积约3.18万平方米,用地性质为居住用地。项目总建筑面积约9.88万平方米,其中地上约6.97万平方米,地下约2.90万平方米,容积率≤2.1、绿地率≥30%、建筑密度≤30%。
从总平面图上看,项目规划10栋17层住宅,另外项目内容规划有露天泳池、文体活动场地。

项目地块为去年8月30日无锡第三批次集中供地中成交的地块,由无锡新都房产开发有限公司以楼面价18000元/㎡拿下。
