锡东新城新添一家睦邻中心
2022-07-04 09:54:21 无锡市自然资源和规划局
锡东新城新添一家睦邻中心,规划出炉。
6月30日,无锡锡东新城商务区(翠屏山旅游度假区)XDG-2021-55号地块开发项目规划设计方案批前公示,即建发西地块睦邻中心项目。
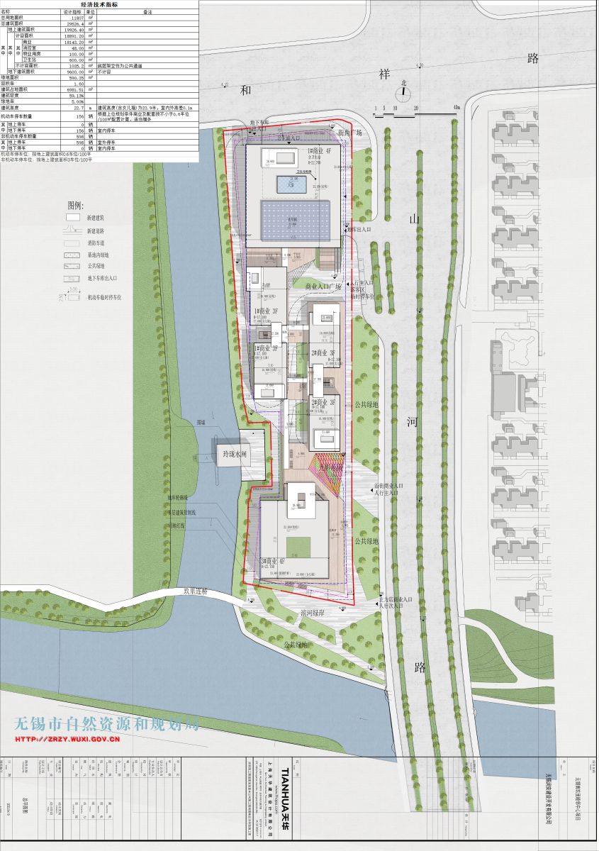
项目位于锡东新城商务区(翠屏山旅游度假区)山河路西、和祥路南,建设单位为无锡润安建设开发有限公司,总可建设用地面积约11807平方米,用地性质为商业用地,总建筑面积约2.95万平方米。
项目地上建筑面积1.99万平方米,地下建筑面积约0.96万平方米,容积率1.6,建筑密度59.1%,绿地率5.0%,各项指标符合规划设计条件要求。
从总平面图上看,项目总高4层,规划有街角广场、滨河绿岸,分1、2、3#楼商业,另楼顶还规划有光伏板。

根据经济技术指标显示,项目规划有机动车停车位156个,均为地下;非机动车停车位598个,均为地上、室外。
根据此前消息,项目内设社区服务、社区卫生、老年活动中心、社区商业等功能。
